Structural Wood Corporation

4000 LABORE ROAD ST. PAUL, MINNESOTA 55110 PHONE (651) 426-8111
FAX (651) 426-6859
(800) 652-9058

Home | About SWC | Photo Gallery | SWC Products | SWC Services | SWC Contacts | Site Map

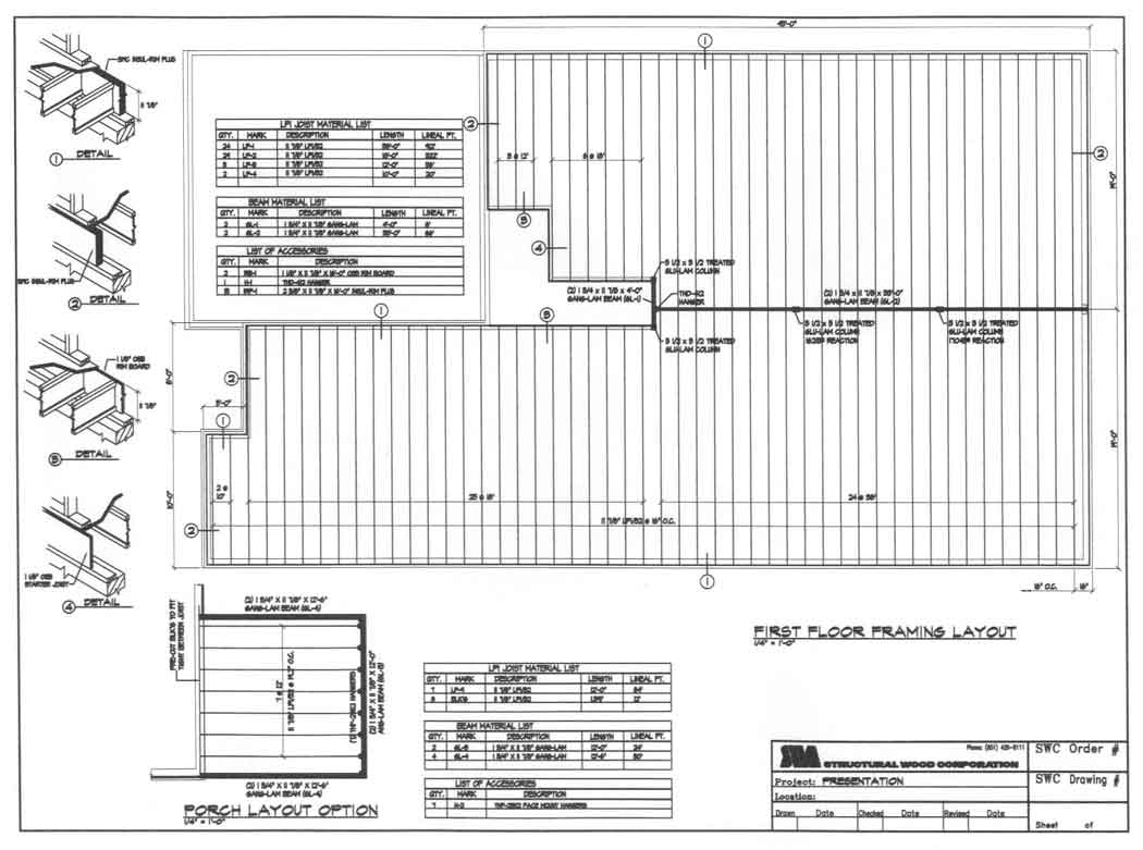
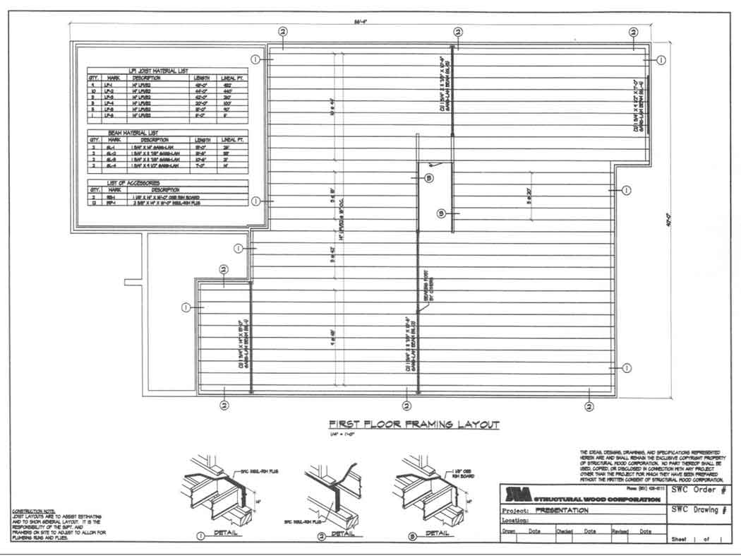
Placement Plans

Placement plans are the key to any installation. They help guarantee a quality installation job. Structural Wood Corporation's placement plans coordinate the various engineered wood products we supply to ensure they fit correctly and, if necessary, match any existing structures or installations.

SWC believes in creating placement plans that are detailed and informative. We ask the important questions when we draw your plans, so you don't have to. Our drawings are checked and signed off to assure you that you're receiving clear and competent placement plans. Click on the thumbnails below for examples of detail drawings and placement plans from previous Structural Wood Corporation jobs.

Residential Placement Plan 1 Residential Placement Plan 2 Residential Placement Plan 3
Commercial Placement Plan Detail 1 Commercial Placement Plan Detail 3 Commercial Placement Plan Detail 2 Commercial Placement Plan Detail 4

Home | About SWC | Photo Gallery | SWC Products | SWC Services | SWC Contacts | Site Map

© STRUCTURAL WOOD CORPORATION 2005